MVB/1
جدید
مدل رگولاتور مربوطه: (موجود در سایت) RG/2MCS
بیشترین فشار کاری: 1 تا 6 بار
زمان بستن دریچه: کمتر از 1 ثانیه
دمای کارکرد: -15 تا 60 درجه سانتی گراد
موجود در سایزهای مختلف رزوهای و فلنچی
ساخت: کشور ایتالیا
جهت اطلاع از قیمت شات آف ولو ماداس MADAS مدل MVB/1 تماس بگیرید.
اخطار: آخرین موجودی فعلی!
تاریخ در دسترس بودن:
شات آف ولو ماداس Shut off Valve MADAS مدل MVB/1
لینک محصول در سایت ماداس Madas
شات آف ولو ماداس MADAS مدل MVB/1 چیست؟
شات آف ولو ماداس MADAS مدل MVB/1 نوعی شیر قطع کن از انواع شیرهای ایمنی است. شات آف ولو در خطوط گاز استفاده میشود. کنترل و تنظیم فشار گاز در سیستم بر عهده رگلاتور گاز است. کاهش درست و به اندازه فشار توسط رگلاتور امری بسیارحیاتی است. چرا که اگر گاز با فشار بالاتر از حد مجاز وارد خطوط شود منجر به خسارت دیدن قطعات و گاهی وقوع فجایع بزرگی میشود. یکی از شیرهایی که به همراه رگلاتور در خظوظ گاز جهت ایمنی نصب میشود شات اف ولو می باشد. اگر به هر دلیلی فشار ورودی رگولاتور گاز کاهش پیدا کند این امر مجب بالا رقتن فشار خروجی از آن و در نتیجه افزایش فشار گاز در کل سیستم میشود. این افزایش فشار اگر به کمک ونت قابل رفع باشد, رگلاتور با ونت کردن یا همان تخلیه گاز محفظه رگلاتور موجب تنظیم مجدد فشار خروجی میشود. اما اگر از یک حدی بالاتر رود دیگر جریان ورود فشار باید کاملا قطع شود. و این هنگامی است که شات آف ولو یا شیر قطع کن فرمان میدهد. یه این ترتیب شات آف ولو ماداس MADAS مدل MVB/1 یک وسیله جانبی مفید برای متوقف کردن جریان گاز در شرایط کنترل شده است.
برخی از شات آف ولو ها پس از کاهش فشار , مجددا به صورت اتوماتیک ریست شده و دوباره جریان گاز باز میشود. اما برخی دیگر مانند شیر شات آف ماداس مدل MVB/1 نیاز به ریست دستی دارند.
شات آف های ماداس در طیف وسیعی از صنایع استفاده می شوند. شات آف ولو ماداس MADAS مدل MVB/1 شیری برای کنترل و قطع جریان گاز بالادست برای ایمنی نیروگاه و کارخانه است. هنگامی که ، مقدار فشار رگولاسیون از فشار تنظیم شده پایین میآید، شیر شات اف ماداس به صورت خودکار بسته میشود.
تنظیم مجدد شات آف ولو ماداس MADAS مدل MVB/1 فقط به صورت دستی است و تنها پس از بررسی دلایل و حل مشکلی که باعث بسته شدن شده است، امکان پذیر است.
شرکت ایران پویا صنعت به عنوان نماینده ماداس ایتالیا در ایران, آماده ارائه مشاوره به شما عزیزان و تامین جهیزات خطوط گاز با محصولات ماداس اصل ایتالیا میباشد. جهت اطلاع از قیمت شات آف ولو ماداس MADAS مدل MVB/1 و دریافت مشاوره با ما تماس بگیرید.


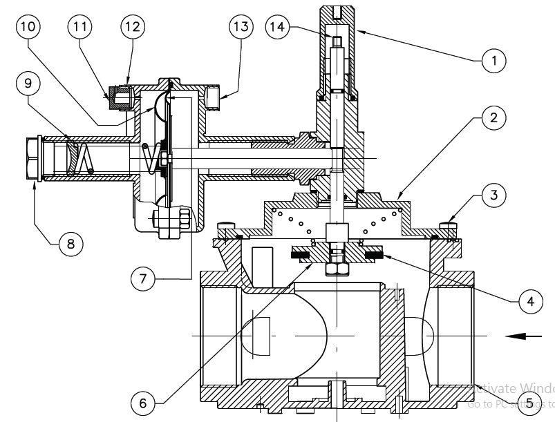
1-دستگیره محافظ و رفع شات
2-پوشش
3-پیچ نگه دارنده ی محافظ
4-واشر آببندی
5-بدنه شیر
6-مسدود کننده
7-دیافراگم
8-کله گی آلومینیومی
9-پیچ تنظیم
10-دیافراگم اطمینان
11-کلاهک ضد غبار(Anti dust)
12-کانکشن (G "1/4) برای اتصال خارجی دزر صورت ضرورت
13-کانکشن (G "1/4) برای اتصال پایین دست به رگولاتور
14-پین ریست کننده
درباره شرکت ماداس MADAS
(برای دیدن محصولات ماداس اینجا کلیک کنید)
کمپانی ماداس در سال 1974 به دلیل تقاضای زیاد لوازم خط گاز در ایتالیا تاسیس شد.موسس کمپانی ماداس ، مسیری را آغاز کرد که رضایتمندی های پی در پی را به همراه داشته و دارد.همه ی محصولات ماداس دارای گواهینامه و استاندارد حداکثری هستند.ماداس تقریبا به همه ی کشور های جهان محصولات خود را صادر میکند.مواردی که محصولات ماداس را از رقبای خوشنام خود متمایز میسازد قیمت مناسب آن در کنار کیفیتی است که به مشتری خود ارائه میکند و این باعث شده که ماداس در دل صنایع خط گاز برای خود جا باز کند و حرفی برای گفتن داشته باشد.
شرکت ایران پویا صنعت ,نمایندگی ماداس در ایران, آماده تامین محصولات ماداس برای شما میباشد.شما میتوانید از مشاوره رایگان مجرب ترین مهندسین خط گاز ما بهره مند شوید. حهت خرید شات آف ولو ماداس MADAS مدل MVB/1 تماس بگیرید.